Back to overview

apartment on higher floor / short-term rental / Dresden

Apartment

01097 Dresden–Neustadt

free from 31.07.2026

ID: 237145

Equipment

Internet
Yes
Washing machine
Yes
Dishwasher
Yes
Balconies/Terraces
No
Lift
No
Parking space
No

Details

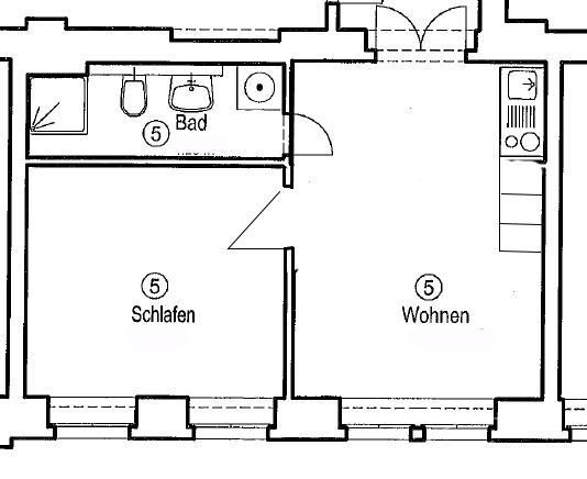
Living space

35 m²

Room

2

Floor

1

Floors

3

Bedrooms

1

Bathrooms

1

Year Built

1900

Category

Standard

State

neat

Location/Area

City center

Access to the apartment

Sofort

Pets allowed

No

Bath with

Shower

Kitchen

Fitted kitchen

Floor

Laminate

Services

Cleaning

Furnished

full

Available from

31.07.2026

Maximum persons

2

For Rent

Non-smoker

Suitable for seniors

Monument protection

Cable/Sat TV

Costs

Flat rate rent:

1,200 €

Service charges included in the all-inclusive rent

Heating costs included:

Yes

Deposit:

1,000 €

Gallery

Non-binding request

1,200 €

Flat rate rent

*” indicates required fields

DD dot MM dot YYYY
DD dot MM dot YYYY
This field is hidden when viewing the form
This field is hidden when viewing the form

Your contact person

Responsible for the offer is:

HomeCompany Dresden

Dieselstraße 11, 01257 Dresden

Visit us on site!

Imprint / Legal

Share this offer